Skip To Content

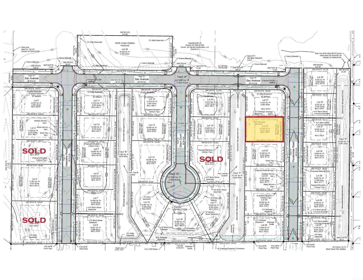
Lot 22 Pocahontas Road

Cedar Falls, IA 50613
  • $85,000
  • STATUS: Active
  • ON SITE: 382 Days
  • MLS #: 20251720
UPDATED: 36 min ago
$85,000
  • 0
    BEDS
  • 0.24
    ACRES
  • 0
    BATHS
  • 0
    1/2 BATHS
Type:
Vacant Land / Lots
County:

School Information

Elementary School:
Middle School:
High School:

Description

Construction is underway in this highly sought after North Cedar development. Get your offer in now and close when it's build ready. Completion could be this Fall or next Spring. Bring your own builder or Sands Construction will build to suit. Ask for details or a construction meeting to look at the options.

Monthly Payment Calculator



Listings courtesy of Northeast Iowa Regional Board of REALTORS as distributed by MLS GRID. IDX information is provided exclusively for consumers' personal, non-commercial use and may not be used for any purpose other than to identify prospective properties consumers may be interested in purchasing. Information is deemed reliable but is not guaranteed accurate by MLS GRID or Vine Valley Real Estate. The use of the MLS GRID Data may be subject to an end user license agreement prescribed by Northeast Iowa Regional Board of REALTOR and may be amended from time to time. MLS Grid  logo Based on information submitted to the MLS GRID as of 2026-05-10T06:41:45.717 (date and time MLS GRID Data was obtained). All data is obtained from various sources and may not have been verified by broker or MLS GRID. Supplied Open House Information is subject to change without notice. All information should be independently reviewed and verified for accuracy. Properties may or may not be listed by the office/agent presenting the information.
Click here for MLS GRID DMCA Notice
www.movewithvvre.com/homes/162834760
Print Image

Lot 22 Pocahontas Road Cedar Falls, IA 50613

  • Price: $85,000
  • Status: Active
  • On Site: 382 Days
  • Updated: 36 min ago
  • MLS #: 20251720
0
Beds
0
Baths
0
½ Baths
0.24
Acres
County:
Black Hawk
Elementary School:
North Cedar Elementary
Middle School:
Holmes Junior High
High School:
Cedar Falls High
Property Description
Construction is underway in this highly sought after North Cedar development. Get your offer in now and close when it's build ready. Completion could be this Fall or next Spring. Bring your own builder or Sands Construction will build to suit. Ask for details or a construction meeting to look at the options.
Exterior Features

Lot Size Dimensions 80x129 Regular Irregular Reg

Property Features

Flood Plain C/X - Not in Flood Plain For Sale Rent For Sale Property Sub Type Residential Lots Sewer Public Sewer Water Source Public Zoning A-1



Listings courtesy of Northeast Iowa Regional Board of REALTORS as distributed by MLS GRID. IDX information is provided exclusively for consumers' personal, non-commercial use and may not be used for any purpose other than to identify prospective properties consumers may be interested in purchasing. Information is deemed reliable but is not guaranteed accurate by MLS GRID or Vine Valley Real Estate. The use of the MLS GRID Data may be subject to an end user license agreement prescribed by Northeast Iowa Regional Board of REALTOR and may be amended from time to time. MLS Grid  logo Based on information submitted to the MLS GRID as of 2026-05-10T06:41:45.717 (date and time MLS GRID Data was obtained). All data is obtained from various sources and may not have been verified by broker or MLS GRID. Supplied Open House Information is subject to change without notice. All information should be independently reviewed and verified for accuracy. Properties may or may not be listed by the office/agent presenting the information.
Click here for MLS GRID DMCA Notice
 
Logo
Vine Valley Real Estate
808 E. 18th St.
Cedar Falls IA, 50613